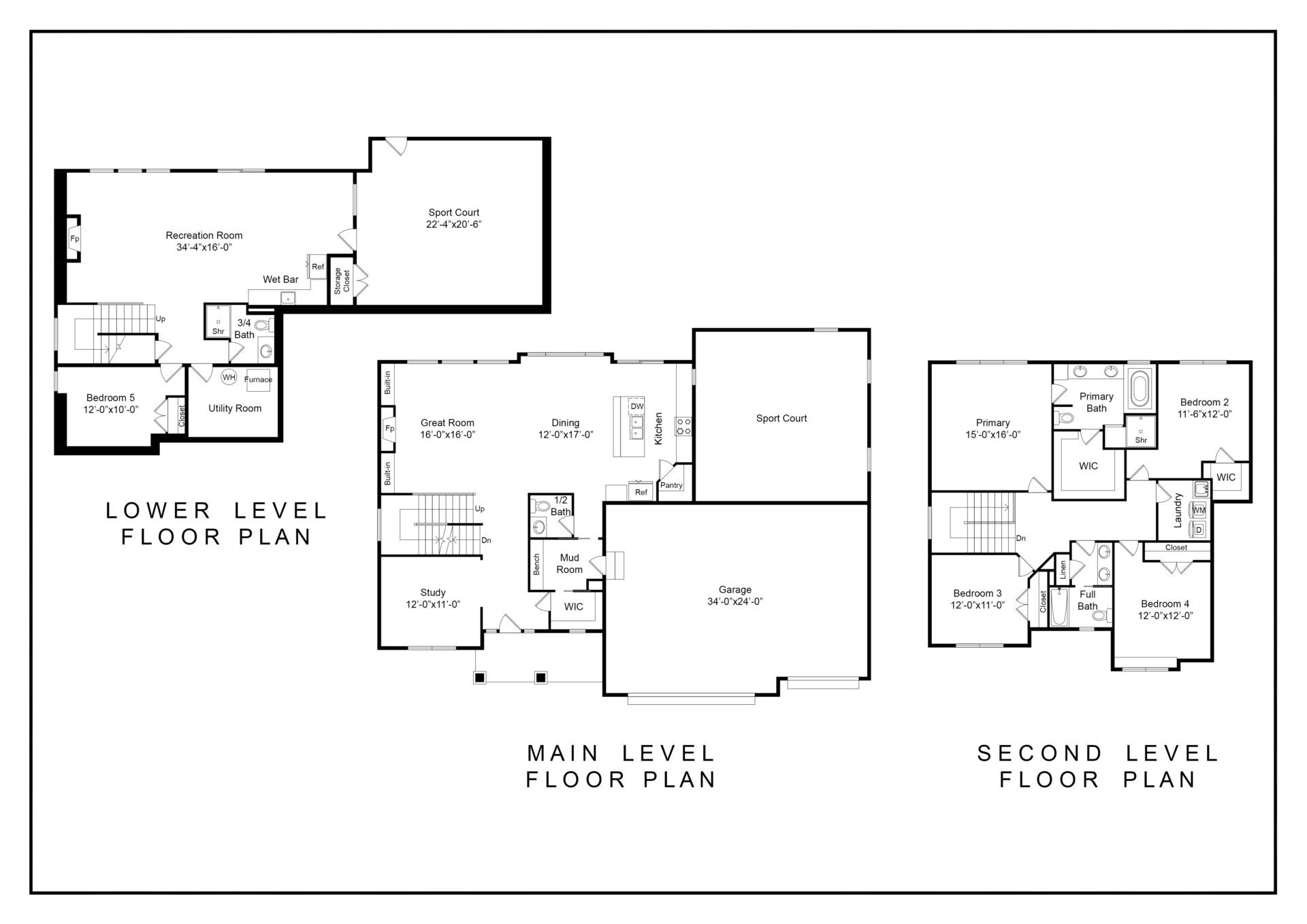
Contact Us Print This Page View Plan Brochure See More Plans Pandora with Sport Court 5 Bed • 4 Bath • 3 Garage • 4,188 ft2 Plan Type: 2 Story Contact Us Print This Page View Plan Brochure See More Plans